千葉県八街市八街に
総武本線「八街」駅 徒歩5分
総武本線「八街」駅 車3分(0.5km)

















1 2 3
※現況と相違ある場合、現況を優先します。
千葉県八街市八街に
総武本線「八街」駅 徒歩5分
総武本線「八街」駅 車3分(0.5km)
| 建物現況 | 居住中 |
|---|---|
| 建物構造 | 木造 |
| 階建 | 2階建 |
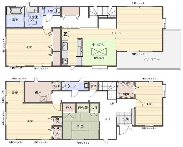
| 間取り | 4SLDK |
| 築年月 | 1995年11月下旬 |
| 建物面積 | 登記:174m2(52.63坪) |
| 土地面積 | 公簿:228.09m2(68.99坪) |
| 地目/地勢 | 宅地/- |
| 建ぺい率/容積率 | 80%/400% |
| 土地権利 | 所有権 |
| 借地期間 | - |
| 権利金/保証金 | -/- |
| 都市計画 | 未線引区域 |
| 用途地域 | 商業地域 |
| 駐車場 | 有(1台可) |
|---|---|
| 接道状況 | 一方(北東:公道 幅員3.1m 接面8m) |
| セットバック | - |
| 私道有無 | 無 |
| 国土法届出 | 不要 |
| 手付金保証 | - |
| フラット利用 | - |
| 学校区 |
実住小学校(700m) 八街中央中学校(950m) |
| 法令に基づく その他制限 |
準防火地域 |
| 備考 | 契約不適合責任免責・現況有姿準防火地域測量図無し、測量図登記売主様負担で行います |
| 取引態様 | 仲介 |
| 引渡時期 | 2026年6月中旬 |
| 問い合せ番号 | 099401-12142 |
| 物件更新日 | 2026年4月23日 |
2026年5月7日
ショッピング施設 ボンメゾン八街けやきの森店(126m)

スーパー トウズ 八街店(622m)

スーパー タイヨー八街店(1028m)

ショッピング施設 イオン八街店(2943m)

役所 八街市役所(804m)

病院 湯沢クリニック(520m)

病院 長谷川病院(528m)

総合病院 新八街総合病院(1709m)

病院 おがわ動物病院(988m)

お問い合わせ番号をお伝えいただくとスムーズです。
この物件のお問い合わせ番号は【099401-12142】です。

八街市 八街に(やちまたし やちまた に)
千葉県八街市八街に
4SLDK(174m2/228.09m2)
2,180万円

佐倉市 宮前2丁目 全1棟 1号棟
千葉県佐倉市宮前2丁目
4LDK(108.48m2/196.08m2)
4,280万円

リガーレ 成田市 土屋1期 全2棟 2号棟
千葉県成田市土屋
4LDK(101.89m2/113.19m2)
4,498万円

リガーレ 成田市 土屋1期 全2棟 1号棟
千葉県成田市土屋
3LDK(103.94m2/121.49m2)
4,298万円

リガーレ・富里市日吉台2丁目・3期・全1棟・1号棟
千葉県富里市日吉台2丁目
4LDK(114.26m2/178.86m2)
4,598万円

千葉市緑区あすみが丘2丁目 B号棟
千葉県千葉市緑区あすみが丘2丁目
4LDK(97.71m2/120.81m2)
3,790万円

千葉市緑区あすみが丘2丁目 A号棟
千葉県千葉市緑区あすみが丘2丁目
4LDK(95.63m2/115.06m2)
3,490万円

八街市 八街ほ(やちまたし やちまた ほ)
千葉県八街市八街ほ
5DK(106.81m2/142.45m2)
1,680万円

大網白里市 みどりが丘2丁目
千葉県大網白里市みどりが丘2丁目
4LDK(132.04m2/193.92m2)
2,380万円

富里市 日吉台 全1棟 A号棟
千葉県富里市日吉台5丁目
4LDK(99.57m2/158.53m2)
3,990万円

東金市 田間 新築戸建2棟
千葉県東金市田間
3LDK(70.59m2/182.28m2)
3,480万円

山武市 横田(さんむし よこた)
千葉県山武市横田
4LDK(136.63m2/265.9m2)
780万円

八街市 富山(やちまたし とやま)
千葉県八街市富山
4LDK(93.98m2/150.12m2)
880万円

八街市 文違(やちまたし ひじかい)
千葉県八街市文違
4LDK(99.36m2/165.3m2)
1,780万円

大網白里市 上貝塚(おおあみしらさとし かみかいづか)
千葉県大網白里市上貝塚
6LDK(196.76m2/1043.02m2)
2,980万円

大網白里市 南横川(おおあみしらさとし みなみよこかわ)
千葉県大網白里市南横川
3LDK(155m2/399.33m2)
2,280万円

山武市 埴谷(さんむし はにや)
千葉県山武市埴谷
4SLDK(110.13m2/172.8m2)
1,880万円

東金市 道庭(とうがねし どうにわ)3B-2
千葉県東金市道庭
3LDK(110.13m2/315.72m2)
2,880万円

東金市 道庭(とうがねし どうにわ)3B-1
千葉県東金市道庭
3LDK(105.99m2/267.94m2)
2,980万円

東金市 下武射田(とうがねし しもむざた)3C-1
千葉県東金市下武射田
4LDK(113.03m2/396m2)
2,880万円

東金市 八坂台5丁目(とうがねし やさかだい)
千葉県東金市八坂台5丁目
3LDK(150.7m2/187.65m2)
3,480万円

東金市 季美の森東1丁目
千葉県東金市季美の森東1丁目
4LDK(110.13m2/187.19m2)
2,380万円

東金市 台方(とうがねし だいかた)
千葉県東金市台方
4LDK(91.5m2/137.18m2)
980万円

佐倉市 白銀(さくらし しろがね)
千葉県佐倉市白銀1丁目
4SLDK(157.34m2/191.66m2)
3,180万円

山武市 大木(さんむし おおぎ)
千葉県山武市大木
2DK(56.29m2/168m2)
699万円

山武郡芝山町小池
千葉県山武郡芝山町小池
4LDK(115.06m2/173.42m2)
750万円

八街市 八街ほ(やちまたし やちまた ほ)
千葉県八街市八街ほ
4LDK(102.45m2/197.85m2)
850万円

成田市 並木町(公津の杜Ⅳ)全1棟 A号棟
千葉県成田市並木町
4LDK(100.39m2/164.54m2)
4,390万円

成田市 土屋 全1棟 A号棟
千葉県成田市土屋
4LDK(99.78m2/177.63m2)
4,590万円

千葉市緑区あすみが丘5丁目
千葉県千葉市緑区あすみが丘5丁目
5DK(111.78m2/201.77m2)
1,880万円
物件価格にて、消費税がかかる場合は税込み価格を表示しています。