千葉県佐倉市大佐倉
京成電鉄本線「大佐倉」駅 徒歩3分
京成電鉄本線「大佐倉」駅 車1分(0.3km)
































1 2 3 4 5 6
※現況と相違ある場合、現況を優先します。
千葉県佐倉市大佐倉
京成電鉄本線「大佐倉」駅 徒歩3分
京成電鉄本線「大佐倉」駅 車1分(0.3km)
| 建物現況 | 空家 |
|---|---|
| 建物構造 | 木造 |
| 階建 | 2階建 |
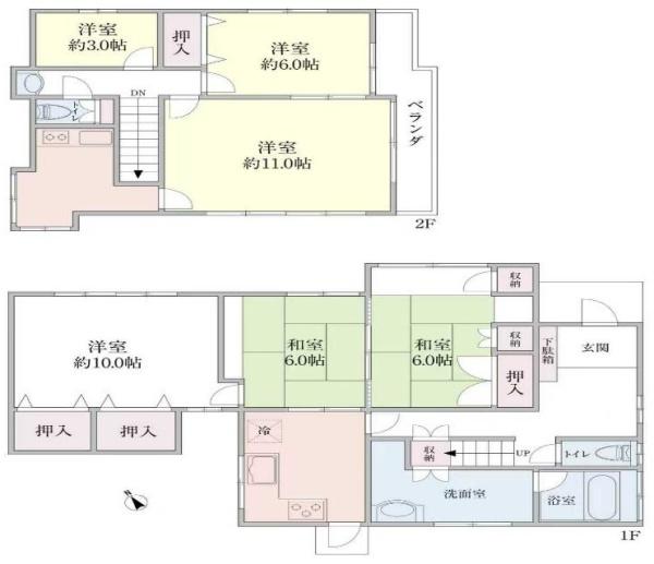
| 間取り | 4LDK(1F:洋10帖 1F:和6帖 1F:和6帖 2F:洋3帖 2F:洋6帖 2F:洋11帖) |
| 築年月 | 1991年12月 |
| 建物面積 | 登記:130.37m2(39.43坪) |
| 土地面積 | 公簿:177.93m2(53.82坪) |
| 地目/地勢 | 宅地/平坦 |
| 建ぺい率/容積率 | 60%/200% |
| 土地権利 | 所有権 |
| 借地期間 | - |
| 権利金/保証金 | -/- |
| 都市計画 | 市街化調整区域 ※宅地の造成および建物の建築はできません。 |
| 用途地域 | 指定なし |
| 駐車場 | 有 |
|---|---|
| 接道状況 | 一方(西:公道 幅員4m) |
| セットバック | - |
| 私道有無 | 無 |
| 国土法届出 | 不要 |
| 手付金保証 | - |
| フラット利用 | - |
| 学校区 |
佐倉東小学校(1233m) 佐倉中学校(3543m) |
| 法令に基づく その他制限 |
- |
| 備考 | 2階増築:1998年(平成10年)5月リフォーム:2025年(令和7年)9月 |
| 取引態様 | 仲介 |
| 引渡時期 | 相談 |
| 問い合せ番号 | 099401-11967 |
| 物件更新日 | 2025年12月1日 |
2025年12月15日
駅 京成佐倉駅(2272m)

お問い合わせ番号をお伝えいただくとスムーズです。
この物件のお問い合わせ番号は【099401-11967】です。

千葉市緑区あすみが丘3丁目
千葉県千葉市緑区あすみが丘3丁目
2SLDK(62.93m2/167.93m2)
2,880万円

グラファーレ千葉市緑区あすみが丘5丁目3期全1棟1号棟
千葉県千葉市緑区あすみが丘5丁目
4LDK(100.81m2/196.09m2)
3,490万円

千葉市緑区あすみが丘東4丁目
千葉県千葉市緑区あすみが丘東4丁目
4LDK(121.92m2/180.44m2)
2,980万円

山武郡芝山町 新井田(にいだ)
千葉県山武郡芝山町新井田
3LDK(130.5m2/818.86m2)
920万円

酒々井町 下岩橋
千葉県印旛郡酒々井町下岩橋
5DK(129.58m2/265m2)
980万円

山武郡芝山町小池
千葉県山武郡芝山町小池
4LDK(115.06m2/173.42m2)
750万円

大網白里市 季美の森南2丁目
千葉県大網白里市季美の森南2丁目
4LDK(135.18m2/220.87m2)
2,100万円

大網白里市 季美の森南1丁目
千葉県大網白里市季美の森南1丁目
4LDK(120.07m2/242.82m2)
2,980万円

山武市 成東(さんむし なるとう)
千葉県山武市成東
4LDK(99.36m2/198.36m2)
2,080万円

八街市 八街に(やちまたし やちまた に)
千葉県八街市八街に
3LDK(72.03m2/115.73m2)
880万円

クレイドルガーデン 八街市文違第6全1棟1号棟
千葉県八街市文違
3LDK(95.57m2/145.28m2)
2,088万円

佐倉市 大佐倉(さくらし おおざくら)
千葉県佐倉市大佐倉
4LDK(130.37m2/177.93m2)
2,180万円

東金市 台方(とうがねし だいかた)
千葉県東金市台方
2SLDK(79.49m2/759m2)
1,000万円

東金市 田間2丁目
千葉県東金市田間2丁目
4SLDK(115.92m2/173.54m2)
1,770万円

グラファーレ 佐倉市 石川3期 全4棟 3号棟
千葉県佐倉市石川
4LDK(102.68m2/145.73m2)
2,790万円

グラファーレ 佐倉市 石川3期 全4棟 4号棟
千葉県佐倉市石川
4LDK(104.34m2/144.17m2)
2,990万円

リーブルガーデンS 佐倉市 表町 全5棟 1号棟
千葉県佐倉市表町1丁目
4LDK(101.43m2/114.1m2)
3,890万円

八街市 八街ろ (やちまたし やちまた ろ)
千葉県八街市八街ろ
4LDK(83.63m2/119.2m2)
1,680万円

リーブルガーデンS 佐倉市 表町 全5棟 5号棟
千葉県佐倉市表町1丁目
4LDK(100.19m2/114.28m2)
3,890万円

リーブルガーデンS 佐倉市 表町 全5棟 4号棟
千葉県佐倉市表町1丁目
4LDK(104.34m2/114.13m2)
3,890万円

リーブルガーデンS 佐倉市 表町 全5棟 3号棟
千葉県佐倉市表町1丁目
4LDK(102.68m2/114.06m2)
3,890万円

大網白里市 南横川
千葉県大網白里市南横川
4LDK(114.07m2/154.73m2)
1,400万円

千葉市緑区あすみが丘東2丁目 全2棟 1号棟
千葉県千葉市緑区あすみが丘東2丁目
4LDK(107.23m2/120.93m2)
3,490万円

クレイドルガーデン八街市八街ほ・第15・全2棟・2号棟
千葉県八街市八街ほ
4LDK(100.44m2/140.28m2)
2,288万円

クレイドルガーデン八街市八街ほ・第15・全2棟・1号棟
千葉県八街市八街ほ
4LDK(96.38m2/183.32m2)
2,088万円

千葉市緑区あすみが丘東2丁目 全2棟 2号棟
千葉県千葉市緑区あすみが丘東2丁目
4LDK(108.47m2/120.19m2)
3,390万円

東金市 西福俵
千葉県東金市西福俵
2LDK(126.28m2/197.08m2)
3,850万円

八街市 泉台1丁目
千葉県八街市泉台1丁目
5LDK(126.26m2/195.37m2)
2,680万円

東金市 道庭 (とうがねし どうにわ)
千葉県東金市道庭
3SLDK(112.61m2/194.01m2)
1,750万円

大網白里市 季美の森南2丁目
千葉県大網白里市季美の森南2丁目
5SLDK(134.33m2/227.45m2)
2,349万円
物件価格にて、消費税がかかる場合は税込み価格を表示しています。