千葉県八街市八街に
総武本線「八街」駅 徒歩12分
完成予想図

完成予想図































1 2 3 4 5 6
※現況と相違ある場合、現況を優先します。
千葉県八街市八街に
総武本線「八街」駅 徒歩12分
| 建物現況 | 建築中 |
|---|---|
| 建物構造 | 木造 |
| 階建 | 1階建 |
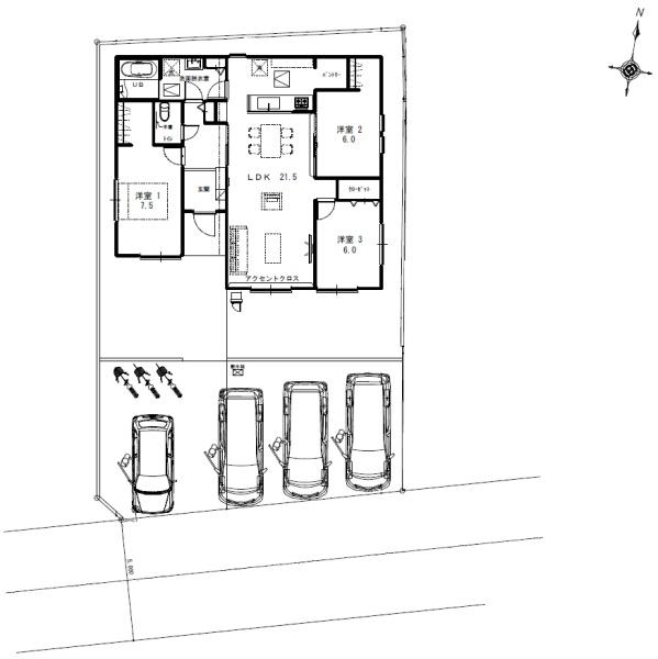
| 間取り | 3LDK(1F:LDK21.5帖 1F:洋7.5帖 1F:洋6帖 1F:洋6帖) |
| 築年月 | 2026年2月下旬 |
| 建物面積 | 登記:94.81m2(28.68坪) |
| 土地面積 | 公簿:245.67m2(74.31坪) |
| 地目/地勢 | 宅地/- |
| 建ぺい率/容積率 | 60%/200% |
| 土地権利 | 所有権 |
| 借地期間 | - |
| 権利金/保証金 | -/- |
| 都市計画 | 未線引区域 |
| 用途地域 | 第一種住居地域 |
| 駐車場 | 有(3台可) |
|---|---|
| 接道状況 | 一方(南:公道 幅員5m) |
| セットバック | - |
| 私道有無 | 無 |
| 国土法届出 | 不要 |
| 手付金保証 | - |
| フラット利用 | - |
| 建築確認番号 | 第25UDI1W建07734号 |
| 学校区 |
実住小学校(1096m) 八街中央中学校(1441m) |
| 法令に基づく その他制限 |
- |
| 備考 | タイヨー(スーパー)まで約841m長谷川病院まで約455m |
| 取引態様 | 仲介 |
| 引渡時期 | 相談 |
| 問い合せ番号 | 099401-11907 |
| 物件更新日 | 2026年2月8日 |
2026年2月22日
スーパー タイヨー八街店(841m)

コンビニ ミニストップ八街おおぎ店(661m)

病院 長谷川病院(455m)

郵便局 南八街郵便局(963m)

役所 八街市役所(1110m)

ショッピング施設 イオン八街店(3249m)

病院 新八街総合病院(2015m)

ホームセンター DCM八街店(2481m)


久保 伸一
お問い合わせ番号をお伝えいただくとスムーズです。
この物件のお問い合わせ番号は【099401-11907】です。

クレイドルガーデン富里市七栄 第33全14棟14号棟
千葉県富里市七栄
4LDK(98.82m2/251.73m2)
2,388万円

クレイドルガーデン八街市八街に 第18全3棟1号棟
千葉県八街市八街に
4LDK(101.25m2/332.95m2)
2,288万円

クレイドルガーデン八街市八街に 第18全3棟2号棟
千葉県八街市八街に
4LDK(95.58m2/332.95m2)
2,288万円

クレイドルガーデン富里市七栄 第33全14棟1号棟
千葉県富里市七栄
4LDK(95.58m2/252.82m2)
2,688万円

クレイドルガーデン富里市七栄 第33全14棟2号棟
千葉県富里市七栄
3LDK(95.58m2/252.91m2)
2,688万円

クレイドルガーデン富里市七栄 第33全14棟6号棟
千葉県富里市七栄
4LDK(98.82m2/252.73m2)
2,688万円

クレイドルガーデン富里市七栄 第33全14棟7号棟
千葉県富里市七栄
4LDK(98.82m2/252.87m2)
2,688万円

クレイドルガーデン富里市七栄 第33全14棟8号棟
千葉県富里市七栄
4LDK(98.82m2/252.48m2)
2,688万円

クレイドルガーデン富里市七栄 第33全14棟9号棟
千葉県富里市七栄
4LDK(102.06m2/252.33m2)
2,588万円

クレイドルガーデン成田市玉造 第13 全2棟 2号棟
千葉県成田市玉造4丁目
4LDK(95.98m2/130.94m2)
3,399万円

クレイドルガーデン成田市玉造 第13 全2棟 1号棟
千葉県成田市玉造4丁目
4LDK(95.58m2/122.62m2)
3,288万円

クレイドルガーデン富里市七栄 第33全14棟10号棟
千葉県富里市七栄
4LDK(103.68m2/252.4m2)
2,588万円

クレイドルガーデン富里市七栄 第33全14棟11号棟
千葉県富里市七栄
4LDK(98.81m2/252.19m2)
2,388万円

クレイドルガーデン富里市七栄 第33全14棟5号棟
千葉県富里市七栄
4LDK(101.25m2/252.78m2)
2,688万円

クレイドルガーデン富里市七栄 第33全14棟4号棟
千葉県富里市七栄
3LDK(95.58m2/252.72m2)
2,688万円

クレイドルガーデン富里市七栄 第33全14棟3号棟
千葉県富里市七栄
4LDK(95.58m2/252.87m2)
2,688万円

クレイドルガーデン富里市七栄 第33全14棟12号棟
千葉県富里市七栄
4LDK(98.82m2/282.14m2)
2,388万円

クレイドルガーデン富里市七栄 第33全14棟13号棟
千葉県富里市七栄
4LDK(98.82m2/281.64m2)
2,188万円

八街市 八街は(やちまたし やちまた は)
千葉県八街市八街は
5LDK(273.6m2/1965.64m2)
4,980万円

八街市 八街へ(やちまたし やちまたへ)
千葉県八街市八街へ
3LDK(152.25m2/363.65m2)
2,000万円

グラファーレ 富里市 御料 全9棟 3号棟
千葉県富里市御料
4LDK(103.08m2/165.09m2)
2,499万円

リナージュ佐倉市千成1丁目 第1期全1棟1号棟
千葉県佐倉市千成1丁目
3LDK(95.22m2/126.5m2)
2,790万円

八街市 八街ほ(やちまたし やちまた ほ)
千葉県八街市八街ほ
3LDK(108.06m2/305.46m2)
980万円

富里市 根木名(とみさとし ねこな)
千葉県富里市根木名
3SLDK(94.39m2/153.91m2)
2,350万円

東金市 八坂台(トウガネシヤサカダイ)
千葉県東金市八坂台4丁目
2SLDK(79.49m2/166.75m2)
2,420万円

富里市 七栄(とみさとし ななえ)
千葉県富里市七栄
3LDK(83.59m2/151.25m2)
1,545万円

大網白里市 南横川
千葉県大網白里市南横川
3LDK(81.01m2/612.98m2)
1,680万円

東金市 菱沼(とうがねし ひしぬま)
千葉県東金市菱沼
4DK(105.14m2/159.01m2)
750万円

富里市 御料 1期 全3棟 2号棟
千葉県富里市御料
4LDK(96.59m2/255.06m2)
3,998万円

富里市 御料 1期 全3棟 1号棟
千葉県富里市御料
4LDK(94.3m2/255.46m2)
3,798万円
物件価格にて、消費税がかかる場合は税込み価格を表示しています。