千葉県佐倉市石川
総武本線「佐倉」駅 徒歩16分







1 2
※現況と相違ある場合、現況を優先します。
千葉県佐倉市石川
総武本線「佐倉」駅 徒歩16分
| 建物現況 | 新築 |
|---|---|
| 建物構造 | 木造 |
| 階建 | 2階建 |
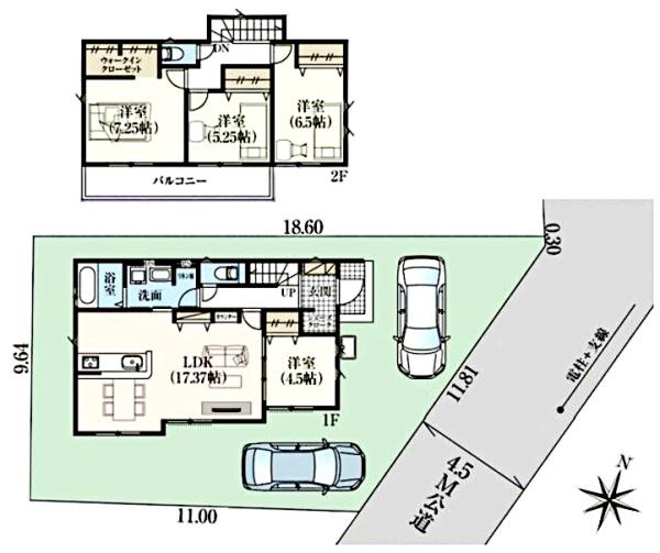
| 間取り | 4LDK(1F:LDK17.3帖 1F:洋4.5帖 2F:洋5.2帖 2F:洋6.5帖 2F:洋7.2帖) |
| 築年月 | 2025年12月 |
| 建物面積 | 登記:102.67m2(31.05坪) |
| 土地面積 | 公簿:151.99m2(45.97坪) |
| 地目/地勢 | 宅地/- |
| 建ぺい率/容積率 | 60%/200% |
| 土地権利 | 所有権 |
| 借地期間 | - |
| 権利金/保証金 | -/- |
| 都市計画 | 市街化区域 |
| 用途地域 | 第一種住居地域 |
| 駐車場 | 有(2台可) |
|---|---|
| 接道状況 | 一方(東:公道 幅員4.5m 接面11.8m) |
| セットバック | - |
| 私道有無 | 無 |
| 国土法届出 | 不要 |
| 手付金保証 | - |
| フラット利用 | - |
| 建築確認番号 | 第HPA-25-10688-1号 |
| 学校区 |
根郷小学校(1187m) 佐倉中学校(3071m) |
| 法令に基づく その他制限 |
- |
| 備考 | - |
| 取引態様 | 仲介 |
| 引渡時期 | 相談 |
| 問い合せ番号 | 099401-11906 |
| 物件更新日 | 2026年1月12日 |
2026年1月26日
駅 JR佐倉駅(1421m)

駅 京成佐倉駅(3376m)

お問い合わせ番号をお伝えいただくとスムーズです。
この物件のお問い合わせ番号は【099401-11906】です。

佐倉市 千成1丁目(さくらし せんなり)
千葉県佐倉市千成1丁目
2DK(119.88m2/276.45m2)
850万円

山武市 松尾町八田
千葉県山武市松尾町八田
5DK(118.74m2/410.73m2)
690万円

大網白里市 富田(おおあみしらさとし とみだ)
千葉県大網白里市富田
3SDK(77.67m2/244.2m2)
680万円

八街市 八街に(やちまたし やちまた に)
千葉県八街市八街に
3LDK(150.7m2/135.79m2)
780万円

フレスティア佐倉 弥勒(みろく)
千葉県佐倉市弥勒町
3LDK(102.27m2/185.24m2)
4,480万円

クレイドルガーデン 八街市富山 第1全1棟1号棟
千葉県八街市富山
4LDK(98.82m2/162.48m2)
2,299万円

クレイドルガーデン 八街市文違 第7全1棟1号棟
千葉県八街市文違
4LDK(95.58m2/139.39m2)
2,188万円

八街市 八街に (やちまたし やちまた に)
千葉県八街市八街に
4LDK(106.81m2/169m2)
780万円

八街市 八街い(やちまたし やちまた い)
千葉県八街市八街い
4DK(88.18m2/281.07m2)
580万円

リナージュ 佐倉市 生谷 第1期 全1棟 1号棟
千葉県佐倉市生谷
4LDK(91.08m2/81.85m2)
2,290万円

山武市 姫島(さんむし ひめしま)
千葉県山武市姫島
4LDK(93.57m2/155.92m2)
1,280万円

成田市 並木町 全3区画 1号棟
千葉県成田市並木町
3LDK(110.13m2/171.01m2)
4,498万円

大網白里市 季美の森南5丁目
千葉県大網白里市季美の森南5丁目
3SLDK(135.57m2/183.48m2)
2,380万円

山武市 松ケ谷ロ(さんむし まつがや ろ)
千葉県山武市松ヶ谷ロ
2LDK(69.56m2/327.97m2)
1,180万円

山武市 日向台(さんむし ひゅうがだい)
千葉県山武市日向台
4LDK(97.67m2/175.97m2)
590万円

成田市 大袋(おおぶくろ)全3棟 A号棟
千葉県成田市大袋
4LDK(97.7m2/133.95m2)
3,790万円

八街市 八街は(やちまたし やちまた は)
千葉県八街市八街は
4LDK(93.57m2/161.1m2)
1,500万円

クレイドルガーデン 東金市 台方 第9 全4棟 1号棟
千葉県東金市台方
4LDK(98.82m2/181.82m2)
2,188万円

大網白里市 みどりが丘2丁目
千葉県大網白里市みどりが丘2丁目
4SLDK(119.46m2/187.18m2)
1,880万円

東金市 田間
千葉県東金市田間
3LDK(86.94m2/112.11m2)
1,200万円

四街道市 さちが丘1丁目
千葉県四街道市さちが丘1丁目
4LDK(151.91m2/179.4m2)
2,380万円

大網白里市 永田(おおあみしらさとし ながた)
千葉県大網白里市永田
3SLDK(109.3m2/311.93m2)
1,980万円

大網白里市 木崎
千葉県大網白里市木崎
4LDK(109.3m2/180.18m2)
880万円

佐倉市 石川
千葉県佐倉市石川
4LDK(102.67m2/151.99m2)
3,090万円

リナージュ 八街市八街に01期 全1棟 1号棟
千葉県八街市八街に
3LDK(94.81m2/245.67m2)
3,090万円

八街市 東吉田(やちまたし ひがしよしだ)
千葉県八街市東吉田
4LDK(92.74m2/155.73m2)
1,180万円

グラファーレ 富里市 御料 全9棟 8号棟
千葉県富里市御料
4LDK(103.09m2/165.11m2)
2,799万円

八街市 八街ろ (やちまたし やちまた ろ)
千葉県八街市八街ろ
4LDK(83.63m2/119.2m2)
1,480万円

四街道市 吉岡 全1棟 1号棟
千葉県四街道市吉岡
3LDK(106.11m2/203.75m2)
4,580万円

グラファーレ 富里市 御料 全9棟 1号棟
千葉県富里市御料
4LDK(100.19m2/155.46m2)
2,499万円
物件価格にて、消費税がかかる場合は税込み価格を表示しています。